Locaux d’activité neufs en construction à louer – 720 m² divisibles – Toulouse Sud – Avenue de Larrieu
31, Avenue de Larrieu
31100 Toulouse
Surface de 190 m² à 720 m²
À louer 72 000,00 € HT/HC/an
Soit 6 000,00 € HT/HC/mois
Soit 100,00 € HT/HC/m²/an
Disponibilité Immédiate !
Accès : Accès immédiat :
Autoroute A64
Route d'Espagne
Périphérique de Toulouse sud sortie : "Chapitre / Centre de Gros"
ZI de Larrieu – Toulouse
Aéroport Toulouse-Blagnac à environ 15 min
Télécharger la fiche descriptive
PDF
Autoroute A64
Route d'Espagne
Périphérique de Toulouse sud sortie : "Chapitre / Centre de Gros"
ZI de Larrieu – Toulouse
Aéroport Toulouse-Blagnac à environ 15 min
Vous avez un projet ? Échangeons sur vos besoins
Nous contacter
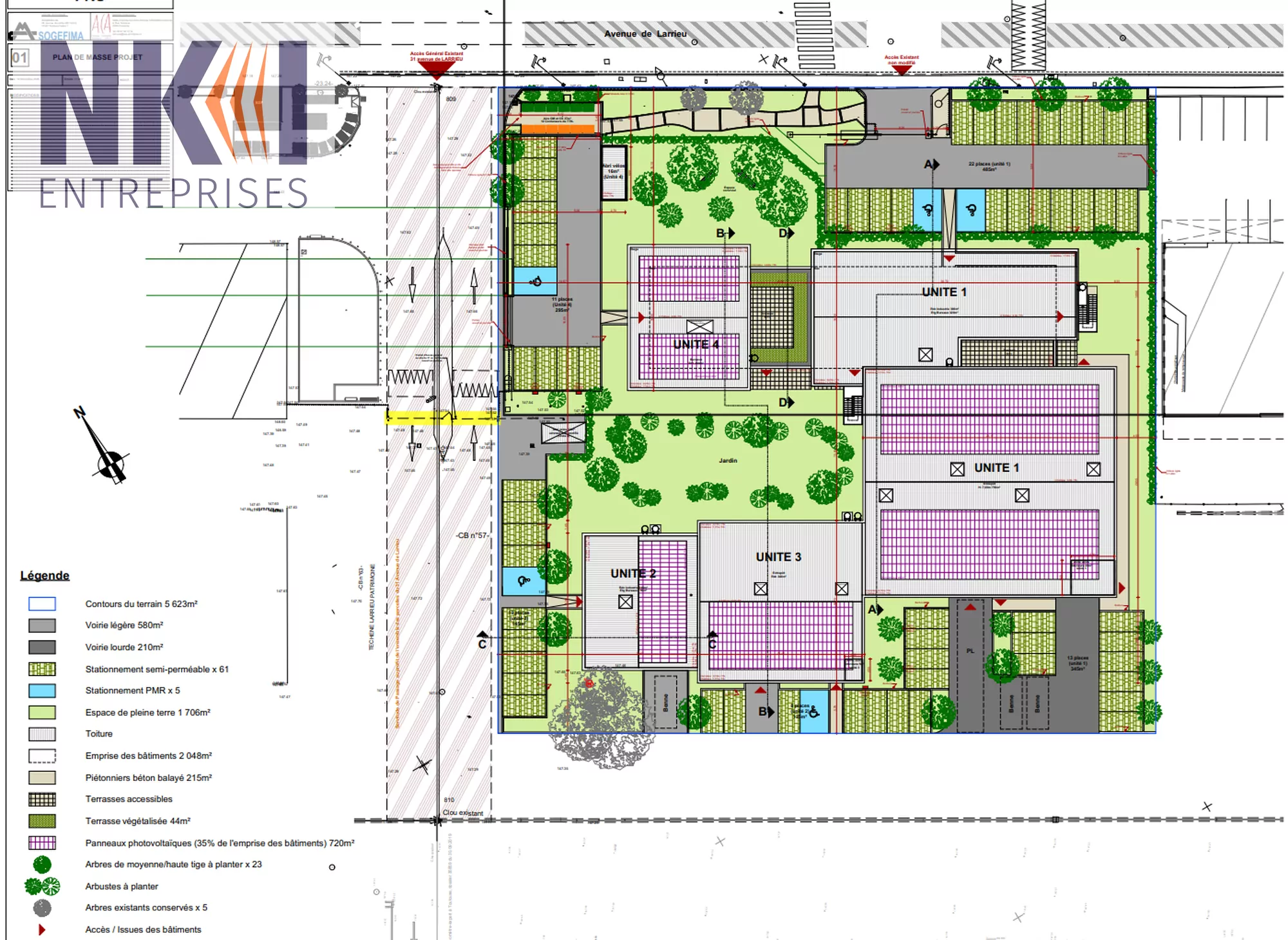
Locaux neufs en cours de construction 720m² divisibles situés avenue de Larrieu à Toulouse, au coeur d'une zone dynamique dédiée au B to B et au B to C, en commercialisation par NKI ENTREPRISES. Livraison prévue pour ces locaux neufs au premier trimestre 2027.
Réservez votre lot de 190m², 380m², 340m ou 720m².
Surfaces divisibles et modulables en fonction de vos besoins au sein d'un programme neuf de locaux d'activités, bureaux et activités professionnelles.
Les unités 1 et 4 sont déjà réservées. Vous pourrez vous positionner sur les unités 2 et 3 dont les détails de surfaces sont ci-dessous :
Unité 2 :
En RDC, local d’activité ou bureaux : 190 m²
En étage, local d’activité ou bureaux :190 m²
Unité 3 :
Entrepôt ou local d'activités de 340 m²
Dalle béton à 3.5 t/m²
Hauteur sous poutre : 7m
Contactez-nous pour réserver votre surface idéale :
NKI ENTREPRISES - Nicolas Kwiatkowski
0783380386 - nicolas@nki-entreprises.fr
www.nki-entreprises.fr
-----------
Sources images :
SARL d'Architecture ACA - Philippe CANGEMI Architectes
Réservez votre lot de 190m², 380m², 340m ou 720m².
Surfaces divisibles et modulables en fonction de vos besoins au sein d'un programme neuf de locaux d'activités, bureaux et activités professionnelles.
Les unités 1 et 4 sont déjà réservées. Vous pourrez vous positionner sur les unités 2 et 3 dont les détails de surfaces sont ci-dessous :
Unité 2 :
En RDC, local d’activité ou bureaux : 190 m²
En étage, local d’activité ou bureaux :190 m²
Unité 3 :
Entrepôt ou local d'activités de 340 m²
Dalle béton à 3.5 t/m²
Hauteur sous poutre : 7m
Contactez-nous pour réserver votre surface idéale :
NKI ENTREPRISES - Nicolas Kwiatkowski
0783380386 - nicolas@nki-entreprises.fr
www.nki-entreprises.fr
-----------
Sources images :
SARL d'Architecture ACA - Philippe CANGEMI Architectes
Lot
Bât / Étage
Park.
Dispo
Prix
Loyer €/HT/an
Type
Surface
Commentaire
108
-
-
31/03/2027
-
72 000 €
Activité
720 m²
Divisible à partir de 190 m²
Divisible à partir de 190 m²
Loyer brut : 100 EUROS/HT/HC/m²/AN
Trouvez la surface adaptée à votre activité
Organiser une visite
Ajouter aux contacts