





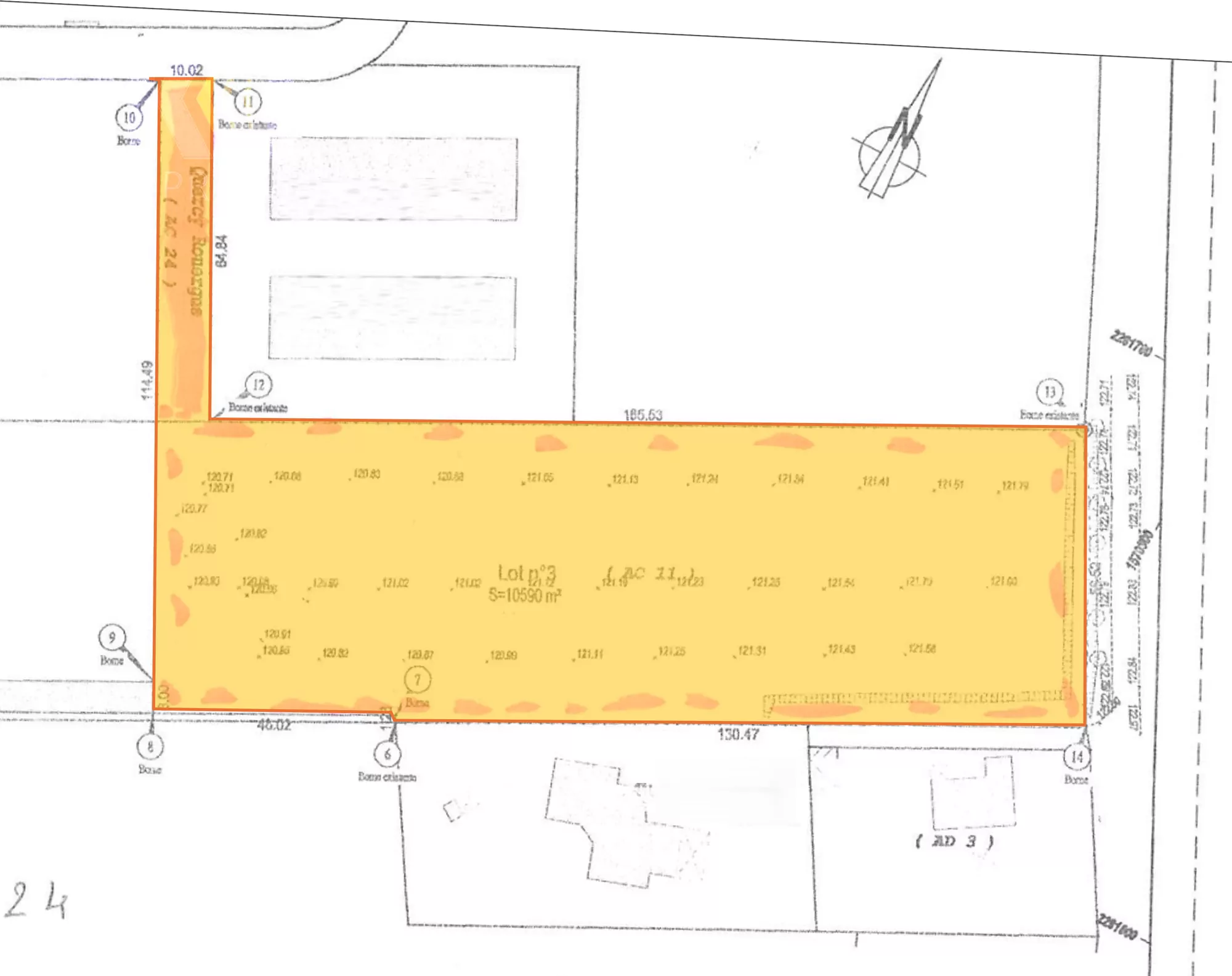
TERRAIN - 10590m² - LESPINASSE
1, CHEMIN DE NOVITAL
31150 Lespinasse
Surface de 10 590 m²
À vendre 1 694 400,00 €
Disponibilité Immédiate !
Accès : Aéroport Toulouse-Blagnac à 13,2 km via la D63
Route de Paris : Accès immédiat
Autoroute A 62 : sortie "Saint-Jory" à 5 minutes
Route de Paris : Accès immédiat
Autoroute A 62 : sortie "Saint-Jory" à 5 minutes
NKI ENTREPRISES - TERRAIN À VENDRE – LESPINASSE (31150)
Superficie totale : 10590m²
Localisation :
Situé au Nord de Toulouse, en zone UFb, ce terrain bénéficie d’un emplacement de choix à proximité immédiate de la sortie A62 Saint-Jory, avec un accès facilité par la D820 et la route de Paris.
Description du terrain :
Superficie totale : 10 590 m²
Terrain plat et rectangulaire
Longueur : 176m – Largeur : 58m
Terrain libre de toute construction
Réglementation & Constructibilité :
COS : 60 %
Hauteur maximale : 7 m sous sablière
Longueur de bâtiment max. : 60 m
Activités autorisées : locaux d’activités, bureaux et entrepôts
Pour plus d'informations, vous pouvez contacter NKI ENTREPRISES au 0783380386 ou consulter notre site : www.nki-entreprises.fr
Superficie totale : 10590m²
Localisation :
Situé au Nord de Toulouse, en zone UFb, ce terrain bénéficie d’un emplacement de choix à proximité immédiate de la sortie A62 Saint-Jory, avec un accès facilité par la D820 et la route de Paris.
Description du terrain :
Superficie totale : 10 590 m²
Terrain plat et rectangulaire
Longueur : 176m – Largeur : 58m
Terrain libre de toute construction
Réglementation & Constructibilité :
COS : 60 %
Hauteur maximale : 7 m sous sablière
Longueur de bâtiment max. : 60 m
Activités autorisées : locaux d’activités, bureaux et entrepôts
Pour plus d'informations, vous pouvez contacter NKI ENTREPRISES au 0783380386 ou consulter notre site : www.nki-entreprises.fr
Id
Étage
Batiment
Parkings
Disponibilite
Prix
Loyer
Type
Surface
Divisible
À partir de
105
-
-
-
-
-
-
Terrain
10590.00 m²
-
-